[返回列表.]    [免费下载畅易手机版APP ]

用户 1768661 **当前提问:这个蒙迪欧致胜燃油泵电路图没有呀

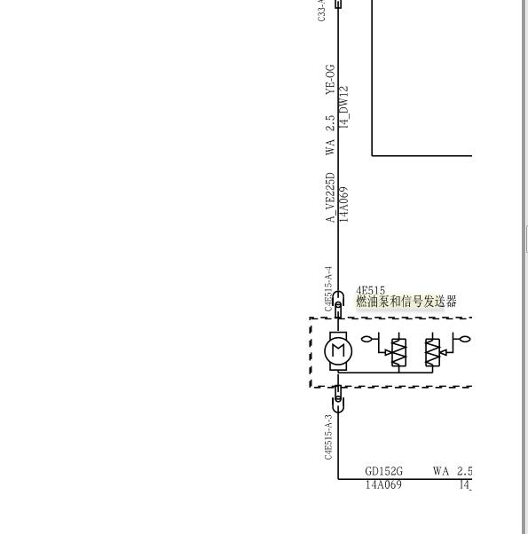
这个蒙迪欧致胜燃油泵电路图没有呀,

.尊敬的用户,欢迎你使用在线客服,你的问题客服人员已为你处理完毕,请下载附件,如有疑问,欢迎和我们联系!.2011年福特蒙迪欧油泵电路图

附件:65512027152422.zip


用户 1768661 ***其他客服问题:
  这个车前保险杠,和后保险杠雷达电路图.. 路虎揽胜极光2015-204PT[L2CVA2BG3F** ]
  一键启动按键电路图找不到呢.. 丰田RAV42016- 6ZR-FAE [LFMK44AF4G** ]
  发动机控制线路,平台上的不清晰请给下文件.. 标志2072010-1[LDC611P219** ]
  OBD线路,平台上的针脚定义不一样.. 标致2062006-1[LDC611L346** ]
  发动机电脑供电,打铁电路图有么.. 道奇酷威2011- D [3D4PG6FD2A** ]
  方向盘警告喇叭线路.. F丰田花冠2013-1ZR[LFMAP22C5C** ]
以下是福特相关车型的客服问题,希望对您有帮助
 危险警告灯 转向灯..福特蒙迪欧 2006 [LVSFBFAC16**]
 油门踏板6根线的标准电压和针脚定义..福特福克斯 11 CAF483Q0 [LVSHCFAE6B**]
 14款蒙迪欧GWM模块位置..长安福特蒙迪欧 14 CAF479WQ0 [LVSHFFAL8E**]
 求一份2017款 三厢1.6手动风尚型福特福克斯的..福特福克斯 2017 C6 [LVSHCFMB3H**]
 15年福特翼虎被动防盗系统(智能钥匙)维修..福特翼虎 2015 2.0
 我这车带座椅加热和通风,你之前发的电路图..福特F150 2016.07 ECOBOOST [1FTEW1EG2G**]
 19年蒙迪欧启动 发动机 变速箱电路图..长安福特蒙迪欧 2019年4月 CAF479WQ4 [LFSHFFAL5K**]
 音响系统端子定义..福特翼虎 2019 KA003421 [LVSHJCALIK**]
 电动后视镜的电路图,平台上对不上..福特全顺 2023 2.0 [LJXCM3FC8P**]
 正时链条安装图,故障码P0016检修流程..福特S-MAX 2008 Duratec-HE [LVSFFSAF48**]
 小灯线路图..福特福克斯 09 CAF483Q0 [LVSHCFME79**]
 猛禽F150 2020年安全气囊的维修手册..福特猛禽F150 2020 3.5TT

Copyright @ 2009 www.car388.com All rights reserved. 蜀ICP备12014226号-2 增值电信增值业务许可证:川B2-20190647 服务电话:028-87038205 87039205 87020205 川公网安备 51010502010015号 公司地址:成都市龙泉驿区经开区南二路309号 鼎峰动力港 企业办公总部基地 12栋
2025-05-24.-.V28**VHTML-2025-V18-11-5---2-