[返回列表.]    [免费下载畅易手机版APP ]

用户 永丰 **当前提问:2011年塞纳前机盖开关线路图

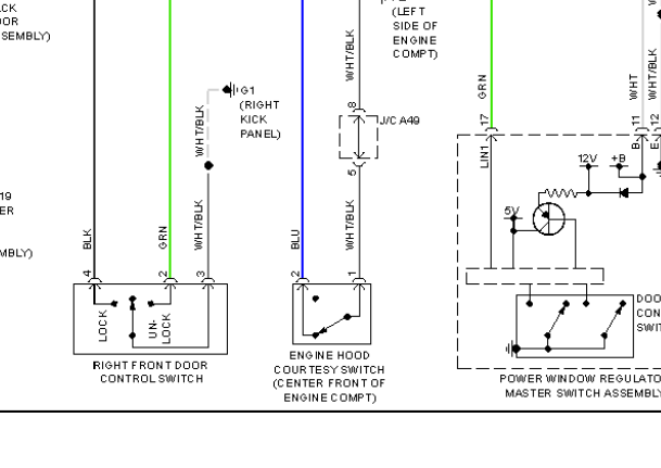
2011年塞纳前机盖开关线路图

.尊敬的用户,欢迎你使用在线客服,你的问题客服人员已为你处理完毕,请下载附件,如有疑问,欢迎和我们联系!2011年丰田塞纳引擎盖开关电路图.

附件:14631389781748.rar

.尊敬的用户,欢迎你使用在线客服,你需要的资料在《畅易汽车维修技术支持平台》是有的,请直接登陆查询!查询方法:国外厂家 ->Toyota(丰田)-塞纳(Sienna)-2011-2015[ 线路图 ] ->System Circuit ->vehicle Interior Theft Deterrent2011-2015年丰田塞纳机盖锁相关电路图.


用户 永丰 ***其他客服问题:
test:
  发动机线路图 防盗线路图 资料里的不对.. 长安铃木雨燕2012-1.6
  17年昂科雷音响线路图和副驾驶保险丝盒线路.. 别克昂科雷2017-.[.** ]
  电子手刹线路图.. 海马V702016-1.5T
  陆风X8胎压模块匹配方法.. 江铃陆风X82017-2.0T
  发动机线路图.. 海马福美来2005-1.6
以下是丰田相关车型的客服问题,希望对您有帮助
 佳美can线电路图..丰田佳美 2004 2AZ [JTDBE30K04**]
 2018年普拉多,风扇继电器怎么找不到..丰田普拉多 2018 1 [LFMG1E722J**]
 防盗部分的手册,需要防盗模块的具体位置..丰田卡罗拉 2020 8NR [LFMAXACC4L**]
 2018年雷凌启动电路图..丰田雷凌 2018 9NR [44444444**]
 丰田锐志通讯电路图..丰田锐志 2012 5GR [LMFBEC4D8B**]
 03年丰田大霸王电动中门电路图,单电动中门..丰田大霸王 2003 2AZ [JTEGD34M80**]
 17普拉多4.0 智能进入 启动电路图..丰田普拉多4.0 2017 04 1GR [JTMHU01J4H**]
 花冠仪表电跑图..丰田花冠 2010年 1zr-fe [LFMAP22C6A**]
 丰田2GR 发动机电控系统电路图 中文版的..丰田塔库玛 2017 2GR
 威驰发动机电脑针脚定义急..丰田tv7150gl——1M3丰田威驰 2005 5A [LTVBA42395**]
 发动机ECU与氧传感器详细线路图..丰田凌志RX300 2003 1MZ-FF [JTJHF31U20**]
 丰田陆地巡洋舰分动箱资料..丰田陆地巡洋舰 13 1GR [JTMHU09J9D**]

Copyright @ 2009 www.car388.com All rights reserved. 蜀ICP备12014226号-2 增值电信增值业务许可证:川B2-20190647 服务电话:028-87038205 87039205 87020205 川公网安备 51010502010015号 公司地址:成都市龙泉驿区经开区南二路309号 鼎峰动力港 企业办公总部基地 12栋
2025-01-15.-.V25VHTML-2025-