[返回列表.]    [免费下载畅易手机版APP ]

用户 13239907 **当前提问:车身电脑BCM电路图 (资料里没有这款

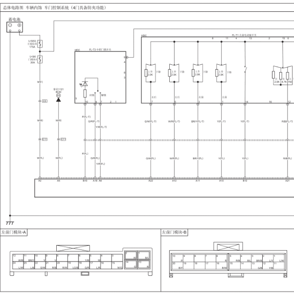
车身电脑BCM电路图 (资料里没有这款的 都不一样 有点急 或者全车电路图也行)

.尊敬的用户,欢迎你使用在线客服,你的问题客服人员已为你处理完毕,请下载附件,如有疑问,欢迎和我们联系!2015-2017年奔腾B50车身电路图.

附件:38781417114020.rar


用户 13239907 ***其他客服问题:
test:
  全车电路图以及维修手册.. 福特金牛座2016-03-GTDIQ6[LVSHFAH9GH** ]
  福特全顺2019年 ABS维修手册和电路图.. 福特福特全顺2019-DURATORQ4D225H[LJXBMDJD9K** ]
以下是一汽奔腾相关车型的客服问题,希望对您有帮助
 11年奔腾B50线路图 室内保险丝盒保险分布图 ..一汽奔腾CA7165MT4 2011.02 BWH [LFPH3ACC5B**]
 11年奔腾B50空调电路图..一汽奔腾奔腾B50 11年 BWH [LFPH3ACC2B**]
 手动变速箱分解图..一汽奔腾x80 2013.6 CA4GD1 [LFBGE3064D**]
 变速箱电脑针脚定义..奔腾B50 13 BWH [LFP83ACC4D**]
 2013款奔腾B50 插电混动版 维修手册 电路图 ..一汽奔腾B50轿车 2013 CA4GA5H [LFPH3ACC1D**]
 这个车的网关位置..一汽轿车B501.6 手动 豪华型 2013 BWH(1.6) [LFP83ACC1E**]
 奔腾B50电路图..一汽奔腾B50 10 1.6
 奔腾发动机和防盗的电路图..一汽奔腾B50一汽奔腾B50 09年5月 BWH [LFPH3ACC69**]
 上传一份奔腾T99电路图..一汽奔腾T99 20 2.0
 08年奔腾B70发动机电脑端子定义 继电器位置图..一汽奔腾B70 2008年1月 LF [LFPH4ACC38**]
 2014年X80的电路图?x..一汽奔腾X80 2014 111
 16年奔腾B50全车电路图..一汽奔腾B50 16 CA4GB16 [FP83ACC9G1**]

Copyright @ 2009 www.car388.com All rights reserved. 蜀ICP备12014226号-2 增值电信增值业务许可证:川B2-20190647 服务电话:028-87038205 87039205 87020205 川公网安备 51010502010015号 公司地址:成都市龙泉驿区经开区南二路309号 鼎峰动力港 企业办公总部基地 12栋
2025-01-15.-.V25VHTML-2025-