[返回列表.]    [免费下载畅易手机版APP ]

用户 贵阳 **当前提问:18款五十铃Mu-X附件电源电路不通电

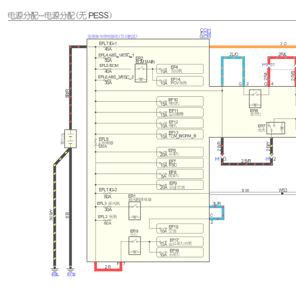
18款五十铃Mu-X附件电源电路不通电

.尊敬的用户,欢迎你使用在线客服,你的问题客服人员已为你处理完毕,请下载附件,如有疑问,欢迎和我们联系!.2018款五十铃Mu-X电源电路图

附件:38871434992446.rar


用户 贵阳 ***其他客服问题:
test:
  查找15款福克斯机舱保险盒插头端子定义.. 福特福克斯2015-CAF372WQ0[LVSHCAAN8F** ]
  12年奔驰ML350的发动机点火电路图。.. 奔驰汽车ML 350 4MATIC3.5 手自一体 四驱豪华型2012-276 955(3.5)[WDCDA5HB0D** ]
  揽胜混动版的发电机电路图.. 路虎揽胜运动版2019- PT204 [SALWA2BY4K** ]
  可以帮我们找找这个17款桑塔纳的自动变速箱.. 上海大众桑塔纳桑塔纳2017-CPD[LSVN04BR4H** ]
  14款捷豹车速自动控制模块(巡航雷达模块).. 捷豹XJL2014-204PT[SAJAA22M1E** ]
  360全景系统电路图.. 奇瑞汽车S7Max 2024-TZ210XYA02(电动机)(电动)[LNNACDEB5R** ]
以下是江西五十铃相关车型的客服问题,希望对您有帮助
 尿素系统控制电路资料、尿素系统机械系统资..江西五十铃JXW1031CSGA 2020-11 RZ4E [LETEDDE11L**]
 玻璃升降器控制电路..江西五十铃jxw1032csja 2020.12 je493zlq6e [letadcg13l**]
 江铃瑞迈发动机电路图..江西五十铃瑞迈 16.11 JE493ZLQ4CA [LETADCG16G**]
 全车电路图或者维修资料..江西五十铃mu-x 201507 4JK1 [LETDJDCB7F**]
 江西五十铃 瑞迈汽油机发电机电路图 ..江西五十铃瑞迈 2017 4K21D4T [ 00**]
 正时图..江西五十铃瑞迈 2017 JE4D25Q5A [LETEDDE13H**]
 发动机和变速箱电路图..江西五十铃牧游侠 2018 RZ4E [LETDJDCB2J**]
 正时安装图..江西五十铃五十铃 2015 4JK1 [LETEDDE10F**]
 缸盖螺丝扭力..江西五十铃瑞迈 20年6月 JE493LQ5F [LETEDCG12L**]
 江西五十铃 瑞迈全车线路图..江西五十铃瑞迈 2020年12月 JE493ZLQ6E [LETEDG1XLH**]
 江西五十铃d-max全车电路图,无法使用百度网..江西五十铃d-max 2017 3.0
 需要2020/6月五十铃铃拓发动机电路图..江西五十铃汽车有限公司JXW1031BSCC 2020/6 JF4D25Q5A [LETEDDE1XL**]

Copyright @ 2009 www.car388.com All rights reserved. 蜀ICP备12014226号-2 增值电信增值业务许可证:川B2-20190647 服务电话:028-87038205 87039205 87020205 川公网安备 51010502010015号 公司地址:成都市龙泉驿区经开区南二路309号 鼎峰动力港 企业办公总部基地 12栋
2025-01-15.-.V25VHTML-2025-