[返回列表.]    [免费下载畅易手机版APP ]

用户 名车 **当前提问:16宝来变速箱电路图 变速箱插头52针

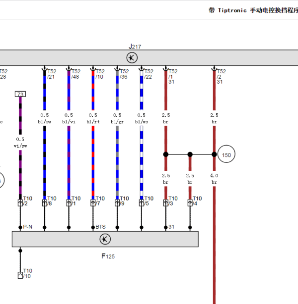
16宝来变速箱电路图 变速箱插头52针 和这几款变速箱线路颜色不一样 事故车线坏了

.尊敬的用户,欢迎你使用在线客服,你的问题客服人员已为你处理完毕,请下载附件,如有疑问,欢迎和我们联系!16年宝来变速箱电路图.

附件:33191563664510.png

这个图不对50脚颜色是中色不是绿色

.尊敬的用户,欢迎你使用在线客服,你的问题客服人员已为你处理完毕,请下载附件,如有疑问,欢迎和我们联系!16年宝来变速箱电路图.

附件:77561563662872.zip


用户 名车 ***其他客服问题:
test:
  威驰ABS 和转向角传感器电路图.. 天津一汽威驰2018-5NR[LFMA8E2A9J** ]
  GT-F1变数箱电路图 .. 玛莎拉蒂GT-F113-F136Y[ZAMUH45E9D** ]
  12年荣威550手动挡 自然吸气发动机电脑线路图.. 上汽荣威55012-18K4C[LSJW26H37C** ]
  斯柯达明锐发动机电脑电路图1.8.. 上海大众斯柯达明锐2009-BYJ[LSVAH41Z79** ]
  君越倒车影像电路图 摄像头电路图.. 别克君越11-LAF[LSGGF53W3B** ]
以下是一汽大众相关车型的客服问题,希望对您有帮助
 天窗拆卸步骤..一汽大众cc 2021 DKX [LFV3A23H1M**]
 曲轴位置传感器与凸轮轴位置传感器的控制电..一汽大众迈腾 1.8t 2007 byj [lfv3a23c67**]
 定速巡航系统..一汽大众迈腾 2010 cbl [LFV3A23C9A**]
 发动机维修资料..一汽大众捷达 2006 AQM [LFV3A31G16**]
 仪表盘拆装,请发下文件..一汽大众高尔夫71.4TSI 双离合 230TSI 25周年纪念版 2016 CST(1.4) [LFV2B25G4G**]
 13年迈腾一键启动线路..一汽大众迈腾 2013 111
 凸轮轴位置传感器电路图..大众宝来 2011 BWH [LFv2A2150A**]
 变速箱壳漏了,我想加变速箱油,可找不到加..一汽大众速腾 2010年3月10日 1.4tsi
 发动机正时安装图..一汽大众新宝来 2012 EA111
 宝来一键启动线路图..一汽大众宝来 2014 1.4T [LFV2A2157E**]
 捷达ABS电路图..一汽大众新捷达 2018年12月 DCF 1.5
 喇叭 天窗电路图 中央控制单元 线路图 ..一汽大众捷达 2013 CPD [LFV2A2BS6D**]

Copyright @ 2009 www.car388.com All rights reserved. 蜀ICP备12014226号-2 增值电信增值业务许可证:川B2-20190647 服务电话:028-87038205 87039205 87020205 川公网安备 51010502010015号 公司地址:成都市龙泉驿区经开区南二路309号 鼎峰动力港 企业办公总部基地 12栋
2025-01-14.-.V25VHTML-2025-