[返回列表.]    [免费下载畅易手机版APP ]

用户 弯仔 **当前提问:有05年帕萨特B5气囊电脑针脚定义图吗

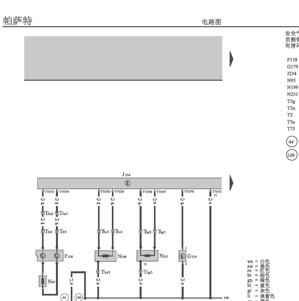
有05年帕萨特B5气囊电脑针脚定义图吗

.尊敬的用户,欢迎你使用在线客服,抱歉,该车资料只有电路图,没有针脚定义,你的问题客服人员已为你处理完毕,请下载附件,如有疑问,欢迎和我们联系!2005年大众帕萨特气囊电路图.

附件:52911593592343.rar


用户 弯仔 ***其他客服问题:
test:
  风扇电路图然后我找到电路图但是无法放大看.. 奔驰A200L2021-282914[LE43X8HBXM** ]
  领克02 外部接收器电路图 .. 领克0218-丁LH3G15TD[L6T7722Z7J** ]
  里程表传感器线路图,仪表针脚图,仪表是一.. 南京依维柯南京依维柯2016-4A91T[LJ8F5C5DXG** ]
  DME博士发动机针脚定义图,端子图,线路图.. 宝马120i120i11年-N46B20E[WBAUL5106B** ]
以下是上海大众相关车型的客服问题,希望对您有帮助
 大灯插头针脚和线路图..上海大众途观2.0TSI 手自一体 四驱菁英版 2010 CGM(2.0) [LSVUD65NXA**]
 大众新桑塔纳仪表针脚图..上海大众桑塔纳 2017 CDP [LSVNY4BRXH**]
 油泵压力不够不好启动换的新油泵,之后油表..上海大众途观 2011 1.8TS CEA [LSVUB25N1B**]
 04年帕萨特维修手册..上海大众帕萨特 04年 BFF [Lsvch49f14**]
 行李尾门箱电机开关和电机的电路图,最好是..上海大众帕萨特 2006.12 BNL [LSVDN49F46**]
 凸轮轴上的链条怎么对?..上海大众帕萨特 2006 BGC
 发动机电脑板..上海大众途安 2011 CFB [LSVRP41T1B**]
 14年朗逸喷水电机线路图..上海大众郎逸 14年 CSR [LSVNV2188E**]
 我要这个车的全车线路图 ..上海大众普通桑塔纳 2011 BSA
 13朗逸的点过线圈线路图..上海大众朗逸 13 CSR [LSVNU4185D**]
 想找该发动机的维修手册或结构图册。谢谢!..上海大众帕萨特 2012年 CEA 1.8T
 后差速器分解图..上海大众途昂 21017 CUG [LSVV2B8CVA**]

Copyright @ 2009 www.car388.com All rights reserved. 蜀ICP备12014226号-2 增值电信增值业务许可证:川B2-20190647 服务电话:028-87038205 87039205 87020205 川公网安备 51010502010015号 公司地址:成都市龙泉驿区经开区南二路309号 鼎峰动力港 企业办公总部基地 12栋
2025-01-14.-.V25VHTML-2025-