[返回列表.]    [免费下载畅易手机版APP ]

用户 小皮 **当前提问:13年雅阁2.0L空调控制面板图24针脚

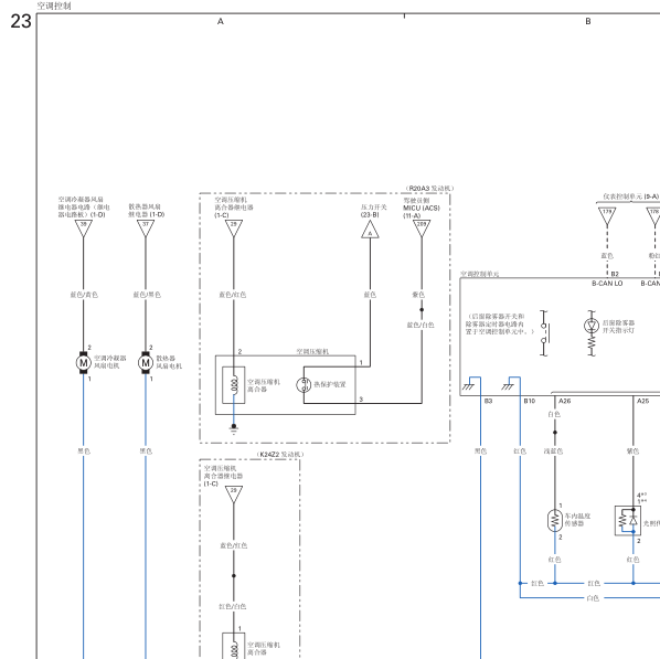
13年雅阁2.0L空调控制面板图24针脚

.尊敬的用户,欢迎你使用在线客服,你的问题客服人员已为你处理完毕,请下载附件,如有疑问,欢迎和我们联系!.2013年雅阁空调电路图

附件:31101450399219.rar


用户 小皮 ***其他客服问题:
test:
  纳智捷大七l-20数据插头位置.. 纳智捷大七2102-g22t[luxg91s17c** ]
  电子助力线路图,.. 本田锋范12-l15a7[lhggm253xc** ]
  油泵继电器在什么位置.. 现代圣达菲2003-G6BA[KMHSC81D05** ]
  发动机电脑针脚图.. 菲克自由光 2017-M096[ LWVCAFM6X** ]
  宝马区位部件图.. 宝马52306-n52b25be[lbvne39046** ]
  发动机电脑针脚图.. 广汽菲亚特致悦1.4T 双离合 舒适版2014-343A0027(1.4)[LWVBA2042E** ]
以下是本田相关车型的客服问题,希望对您有帮助
 转向灯电路图..本田歌瑞 2017 44
 九代雅阁电脑端子定义和线路图..本田九代雅阁 16 2222 [2222**]
 2007年飞度后视镜电路图..本田飞度 2007 L15A1 [LHGGD38467**]
 本田雅阁发动机电脑的供电打铁是哪个针脚以..本田雅阁 2014 R20Z4 [LHGCR1656E**]
 ABS传感器电源线路图 资料上不全..本田奥德赛 2010 2.4L [LHGRB3868A**]
 我要2005年广州本田雅阁K24A4发动机正时链条校..广州本田雅阁 2005 K24A4 [LHGCM56605**]
 空调线路图 03SS..本田奥德赛 2007 K24A6 [LHGRB18497**]
 保险丝位置图及图解..本田雅阁 2010 2.4
 发动机元件位置..广州本田雅阁 2010 R20A3 [LHGP1682A8**]
 本田冠道车身控制器针角定义..本田冠道 2018 K20C3 [LHGTG387XJ**]
 仪表下饭保险盒对照表..广州本田雅阁 2005 K20A7 [LHGGM46265**]
 进气流量控制阀位置图..本田宾智 2019 1.5 [LHGRU1864L**]

Copyright @ 2009 www.car388.com All rights reserved. 蜀ICP备12014226号-2 增值电信增值业务许可证:川B2-20190647 服务电话:028-87038205 87039205 87020205 川公网安备 51010502010015号 公司地址:成都市龙泉驿区经开区南二路309号 鼎峰动力港 企业办公总部基地 12栋
2025-01-14.-.V25VHTML-2025-