[返回列表.]    [免费下载畅易手机版APP ]

用户 兵兵 **当前提问:捷豹S-TYPE风扇电路图

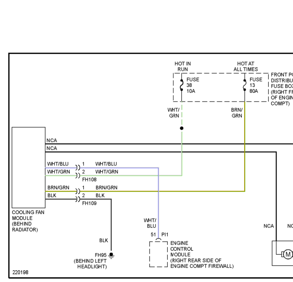
捷豹S-TYPE风扇电路图

.尊敬的用户,欢迎你使用在线客服,你的问题客服人员已为你处理完毕,请下载附件,如有疑问,欢迎和我们联系!.2005年捷豹S-TYPE风扇电路图

附件:83801754708414.zip


用户 兵兵 ***其他客服问题:
  帕萨特点火线圈电路图(发动机型号BFF).. 上海大众帕萨特B52007-2.0L
  11年 尼桑骐达 BCM电路图 .. 东风日产尼桑骐达2011-1.6L
  继电器和控制单元的位置.. 本田思域2015-1.8
  福特全顺 车速传感器装配位置 以及车速传感.. 福特全顺新世代全顺2020-DURATORQ4D225H[LJXCMDJDXL** ]
以下是捷豹相关车型的客服问题,希望对您有帮助
 天窗和卷帘电路图..捷豹XLJ 2015 3.0
 音响电路图..捷豹XF250 2013 2.0 [20**]
 仪表电路图..捷豹S-TYPE 04 1 [SAJEA01T83**]
 需要捷豹XJL全车线路图,年份是2012年。车架..捷豹XJL 2012 [LV14451**]
 档位开关的电路图..捷豹XEL 2019 PT204 [L2CAB3B28K**]
 大灯保险丝位置..捷豹汽车XF3.0 手自一体 V6风华版 2012 FG(3.0) [SAJAA05H9C**]
 发动机冷却液流量控制阀在哪..捷豹XFL 2017 PT204 [L2CBB3BX7H**]
 捷豹空气悬挂维修手册及电路图..捷豹捷豹X350XJ 2008年款 3.0LAJ-V6 [SAJAA89M48**]
 13年捷豹XF大灯线路图..捷豹XF 2013 2。0
 查下sos模块,电脑应该叫Tcu..捷豹汽车XF2.0T 手自一体 豪华版 2013 204PT(2.0) [SAJAA06M9D**]
 2007年捷豹XJ X358 座椅通风座椅加热电路图..捷豹捷豹XJ / X358 2007 AJ-V8 [SAJAA89P18**]
 捷豹 X350 XJ 全车电路图 2008年 电脑板端子图..捷豹捷豹 X350 XJ 2008年 AJ-V6 [SAJAA89M38**]

Copyright @ 2009 www.car388.com All rights reserved. 蜀ICP备12014226号-2 增值电信增值业务许可证:川B2-20190647 服务电话:028-87038205 87039205 87020205 川公网安备 51010502010015号 公司地址:成都市龙泉驿区经开区南二路309号 鼎峰动力港 企业办公总部基地 12栋
2025-05-27.-.V28**VHTML-2025-V18-11-5---2-