[返回列表.]    [免费下载畅易手机版APP ]

用户 心概 **当前提问:东风风光580全车线路图

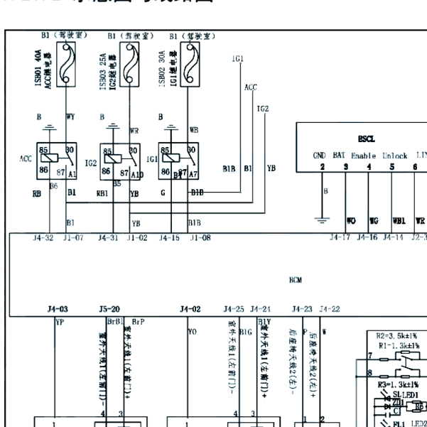
东风风光580全车线路图

.尊敬的用户,欢迎你使用在线客服,客服已致电与您取得联系,了解到您需要该车车身与PEPS电路图,你的问题客服人员已为你处理完毕,请下载附件,如有疑问,欢迎和我们联系!.2021年东风风光580车身与PEPS电路图

附件:87961945036182.zip


用户 心概 ***其他客服问题:
  节气门电路控制.. 三菱帕杰罗V7306-3.8
  四驱系统维修手册及线路图 车身电脑是如何.. 哈佛H513-4G69S4N
  电子气门控制系统VTC 电路图.. 宝马X512-N55 3.5[5UXZV4C58C** ]
  众泰Z500全车电路图及维修手册(无钥匙进入.. 众泰Z50014年11月-4A91T 1.5L[LJB8B2C3DX** ]
以下是东风风光580相关车型的客服问题,希望对您有帮助
 东风风光580变速箱VT5波箱电脑段子图..东风风光580 2019 1.5 [LVZA53P93K**]
 转向角传感器电路图..东风汽车风光5801.5T 无级 舒适型 2017 SFG15T(1.5) [LVZA53P90J**]
 启动继电器电路图不仔细意一键启动模块电路..东风风光风光580 16 SFG15T [LVZA53P9XG**]
 东风风光580全车线路图【发动机,车身模块,..东风 DXK6470AS1F风光580 2017 .3 1498ml
 东风风光580 2020款全车电路图..东风风光580 2020 - [LVZA53P90K**]
 全车维修手册SS..D-东风汽车风光580 2019 [ **]
 东风风光580 1.8L手动档的节气门线路图..东风风光580 2017 SFG18 [LVZA53P98H**]
 东风风光580,方向角度传感器在哪个位置 还..东风牌风光580 17年 SFG15T [LVZA53P9XH**]
 东风风光580一键启动电路图..东风风光580580 2017 SFG15T [LVZA53P94H**]
 燃油泵继电器电路图(博士发动机电脑)..东风风光580 16年款 SFG15T [LVZA53P90G**]
  查下尾门控制模块安装位置 ..东风风光580 2017 SFG15T [LVZA53P99H**]
 一键启动系统的天线位置图..东风汽车风光5801.5T 手动 舒适型 2016 SFG15T(1.5) [LVZA53P99H**]

Copyright @ 2009 www.car388.com All rights reserved. 蜀ICP备12014226号-2 增值电信增值业务许可证:川B2-20190647 服务电话:028-87038205 87039205 87020205 川公网安备 51010502010015号 公司地址:成都市龙泉驿区经开区南二路309号 鼎峰动力港 企业办公总部基地 12栋
2025-05-10.-.V28**