[返回列表.]    [免费下载畅易手机版APP ]

用户 17639809 **当前提问:发电机发电系统电路图

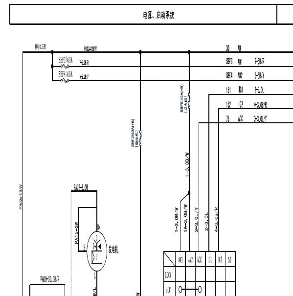
发电机发电系统电路图

.尊敬的用户,欢迎你使用在线客服,客服处理了18年同款发动机的发电机电路图参考,请下载附件,如有疑问,欢迎和我们联系!2018年庆铃达咖发电机电路图.

附件:49991951859589.zip


用户 17639809 ***其他客服问题:
  空调及暖风鼓风机电路图.. 江西五十铃江西五十铃2019年9月-JE493ZLQ5F[LETEDCG10K** ]
  这个车发动机排量是1.5L的,我需要蓄电池接.. 长安福特17款蒙迪欧2017-CAF479WQ0[LVSHFFAL8H** ]
  2010款的进口Jeep指南者Compass全车线路图,中文.. Jeep指南者Compass2010-B[1J4NF4FB9A** ]
  11年郑州日产NP300充电系统电路图,玻璃升降.. 郑州日产NP3002011年-KA24[LJNMFE2G7B** ]
  电子助力方向线路图.. 华晨鑫源T322018-DLCG14[LSYCKH2MXJ** ]
  发动机维修手册.. 江西五十铃瑞迈2018-je4d25q5a[Leteddg17j** ]
以下是庆铃牌相关车型的客服问题,希望对您有帮助
 庆铃发动机电控电路图和电控模块针脚示意图..庆铃牌QL10423HWRY 2016年 4JB1CN [LWLDNR3H7G**]
 麻烦给我找找18年的庆铃皮卡,五十铃的电路..长远汽修厂庆铃 2018 4KH1CT5H1 [LWLTFADD2J**]
 皮卡线路图..重庆五十铃庆铃皮卡 08年12月 4ZE3 [LWLTFRND58**]
 汽油 四缸发动机 电路图..庆铃五十铃庆铃皮卡 2007 4ZE1-MP1 [LWLUCS5C27**]
 发动机电路图..五十铃牌庆铃皮卡 2013年 4JB1-TCT [LWLTFS7D4D**]
 手动空调线路图 发动机控制线路图..中国 庆铃股份公司庆铃皮卡 2011年12月 4JB1-TC1 [LWLTFS7DXB**]
 正时怎么对..庆铃庆铃吉普 2000 4ze1 [LWLUCS5C2Y**]
 庆铃皮卡发动机线路图,喷油嘴,计量单元,..五十铃皮卡庆铃皮卡 2015 4JB1CT [LWLTFS2D8F**]
 全车线路图,空调线路图 ..重庆庆铃皮卡庆铃皮卡 2016 4JB1CT [LWLTFS2D7G**]
 庆铃100P空调电路图..五十铃牌庆铃100P 2020年 4KH1CN5MD [LWLNKAMG6L**]
 我在线等,求助你门呢..庆铃皮卡庆铃皮卡 庆铃皮卡 庆铃皮卡
 ABS电路图..庆铃 庆铃 140TF 2016 4JB1CT [LWLTFA2D1H**]

Copyright @ 2009 www.car388.com All rights reserved. 蜀ICP备12014226号-2 增值电信增值业务许可证:川B2-20190647 服务电话:028-87038205 87039205 87020205 川公网安备 51010502010015号 公司地址:成都市龙泉驿区经开区南二路309号 鼎峰动力港 企业办公总部基地 12栋
2025-05-26.-.V28**VHTML-2025-V18-11-5---2-