[返回列表.]    [免费下载畅易手机版APP ]

用户 13464467 **当前提问:变速箱电脑针脚图和电路图

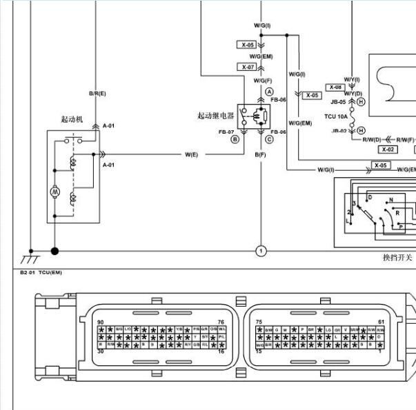
变速箱电脑针脚图和电路图

.尊敬的用户,欢迎你使用在线客服,抱歉,海马骑士资料里面没有变速箱电路图,客服为您处理的海马484同款变速箱资料参考,你的问题客服人员已为你处理完毕,请下载附件,如有疑问,欢迎和我们联系!.2013年海马484自动变速箱电路图与针脚图

附件:33861881955877.rar


用户 13464467 ***其他客服问题:
  线路图.. 长安SC6397C515年12月10-JL466Q9[LS4AAB2D3F** ]
  奔驰ML350 后 SAM线路 还有模块位置.. 奔驰ML35013/06-276 955[WDCDA5HB0D** ]
  尾门电路.. 奔驰ML3502013/06-276 955[WDCDA5HB0D** ]
  丰田棚灯线路.. 广气丰田GTM7201GB12/3-1AZ[LVGBH51K5C** ]
  能帮我查下这个车的四驱线路图和位置.. 现代新胜达2007-G6EA[KMHSH81D88** ]
  发动机电脑针脚图.. 中华FRV2011-4A13[LSYYDACK4B** ]
以下是海马相关车型的客服问题,希望对您有帮助
 海马福仕达电路图..海马福仕达 2012 465Q
 一键启动线路图,发动机与变速箱电脑控制图..海马牌HMA7152DA4W 2014 HMA GN15-TF [LMVAFLFC9E**]
 全车线路图..北汽骑士 2009 4g20d4 [LNBWCBBH79**]
 变速箱电路图,变速箱档位开关电路图..海马丘比特 2012 HM474Q [LH16CKMF7C**]
 海马323发动机维修手册..海马牌323 2006 ZM [LH17CKJF26**]
 海马S7空调电图,还有空调面板针脚图..海马S7 2013 LH16CHAL3DH076540 [ M484Q**]
 电动玻璃线路图..海马福美来三代 2011 MH479QA [LH17CKKF7B**]
 电路图 发动机 防盗资料..海马323 08年 11 [11**]
 继电器没有负极电源。找下电路图..海马福美来 2014 HM474Q-C [LH17CKBF1E**]
 麻烦找一下自动变速箱的维修手册..海马S7 2013 HM484Q-A [LH16CHAL2D**]
 海马骑士11年 变数箱针脚定义图 ..海马骑士 11年 484Q
 变速箱电脑电路图针脚图..海马S7 13 1 [LH16CHAL5D**]

Copyright @ 2009 www.car388.com All rights reserved. 蜀ICP备12014226号-2 增值电信增值业务许可证:川B2-20190647 服务电话:028-87038205 87039205 87020205 川公网安备 51010502010015号 公司地址:成都市龙泉驿区经开区南二路309号 鼎峰动力港 企业办公总部基地 12栋
2025-05-24.-.V28**VHTML-2025-V18-11-5---2-