[返回列表.]    [免费下载畅易手机版APP ]

用户 1366384 **当前提问:天窗插头M81F和M81R这两个针脚定义的资

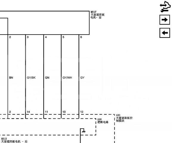
天窗插头M81F和M81R这两个针脚定义的资料

.尊敬的用户,欢迎你使用在线客服,抱歉客服查询了2020年及相近年款CT6的资料,都没有M81F和M81R的针脚资料,只有电路图资料。如需要请下载附件参考,给您带来不便,请谅解!2020年凯迪拉克CT6天窗电路图.

附件:16641980014331.zip


用户 1366384 ***其他客服问题:
test:
  大灯插头的针脚定义.. 别克 昂科旗 2020- LSY [LSGNR83L9M** ]
以下是凯迪拉克相关车型的客服问题,希望对您有帮助
 帮我找一下车上天线的线路图位置图 低频天..凯迪拉克XT5 18 LTG [LSGNB83L4H**]
 帮查一下这个车发动机电脑板端子图 谢谢..凯迪拉克SLS赛威 12年 LNF [LSGDE5391C**]
 SRX全车电路图..凯迪拉克SRX FWD 2015年2月 LFW [3GYFN9E59F**]
 找下1007年凯迪拉克SLS赛威2.792排量的线路图..凯迪拉克SGM7282AT 2007 LP1 [LSGDE53T67**]
 凯德雷10年电动踏板线路图 14线..凯迪拉克凯德雷 10年 WE4 Q3TG [1GYUK9EJ9A**]
 凯迪拉克 SRX 全车线路图..凯迪拉克SRX 2011 LF1 [3GYFN9EY6B**]
 凯迪拉克SRXE5电器元件安装位置。及U0232怎么..凯迪拉克SRXE5 2009 LFW [3GY**]
 11年凯迪拉克ABS端子图 ..凯迪拉克SRX 11年4月 LF1 [3GYFN9EY8B**]
 保险丝分配03SS..凯迪拉克SLS赛威 07 LP1 [LSGDE53T97**]
 刹车踏板传感器电路图..凯迪拉克SRX 2013 LFW [3GYFN9E51D**]
 巡航开关电路图, 和 车身模块控制电路图..凯迪拉克凯迪拉克 凯迪拉克 凯迪拉克 [LSGDE53T67**]
 进口的凯迪拉克 仪表显示 里程 温度 ,,,..凯迪拉克CTS ... ... [...**]

Copyright @ 2009 www.car388.com All rights reserved. 蜀ICP备12014226号-2 增值电信增值业务许可证:川B2-20190647 服务电话:028-87038205 87039205 87020205 川公网安备 51010502010015号 公司地址:成都市龙泉驿区经开区南二路309号 鼎峰动力港 企业办公总部基地 12栋
2025-01-13.-.V25VHTML-2025-V18-11-5---2-