[返回列表.]    [免费下载畅易手机版APP ]

用户 xu9783 **当前提问:发动机启动部分电路图

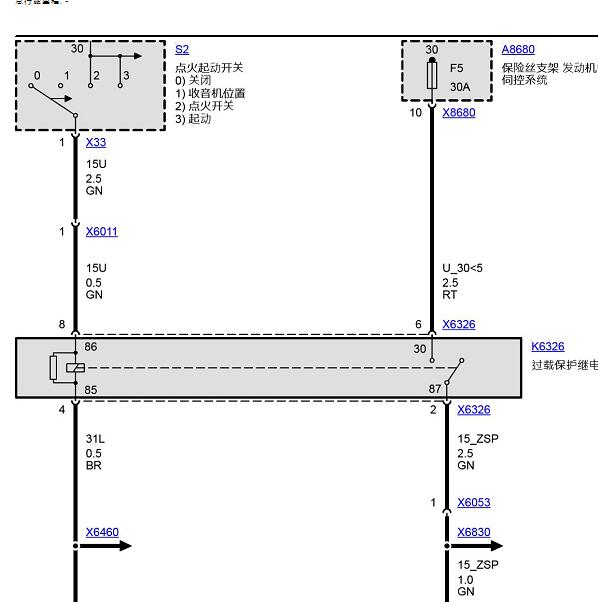
发动机启动部分电路图

.尊敬的用户,欢迎你使用在线客服,你的问题客服人员已为你处理完毕,请下载附件,如有疑问,欢迎和我们联系!.2000年宝马X5 发动机启动电路图

附件:80011992428728.zip


用户 xu9783 ***其他客服问题:
  P0456,P0532的故障码资料.. 东风日产天籁2.0 无级 XL Upper AD1 智行领航版2021-MR20DD(2.0)[LGBF7AE00M** ]
  刹车灯控制电路.. 日产启辰D502012-HR16[LGB612E2XD** ]
  电脑ECU安装位置,电脑ECU针脚定仪.. 福田 风景G72020- 4K22D4M [LVAC2ZWBXM** ]
  VVT轮那个安装方法.. 沃尔沃汽车XC602.0T 双离合 T5 智尊版2013-B4204T7(2.0)[YV1DZ4758D** ]
  燃油泵控制电路图.. 东风日产丽威07年-1.6[LGBK22E539** ]
以下是宝马相关车型的客服问题,希望对您有帮助
 宝马迷你N16正时图..宝马迷你 2011年 N16B16A [WMWSU3109B**]
 2系-228i全车维修手册 SS..宝马228i 2014/2015/2016 [ **]
 脚步空间模块在哪里..宝马3系 2016 N20B20D [LBV8A9402G**]
 副驾驶保险丝含义图详细一分..宝马X5 2005 0 [WBAFA11075**]
 宝马X系-X3 2.0d E83.M47(2003-)电路图 SS..宝马X3 2003 0 [0**]
 宝马730 6HP变速箱阀体拆卸图..宝马730 10 N52 [C680301**]
 发动机舱集成供电模块A11的电路图..宝马X1 2021 B48A20C [LBVHY5108M**]
 雨刮喷水电路图..宝马320i 2005 N46B20CB [LBVVA96055**]
 5UXZV4C57CL753131 2009款X5 N55 缸盖扭矩,大瓦扭矩..宝马X5 2009 N55 [5UXZV4C57C**]
 can系统电路图 网关和仪表电路图 全车电路..宝马523bmw7251CL 08 03146720 [LBVNU39018**]
 发动机手册..宝马汽车520d2.0T 手自一体 后驱特别版 2009 N47D20C(2.0) [WBAFW12060**]
 N63B44A发动机机械装拆分解图..宝马750LI 2008 N63B44A [WBAKB81079**]

Copyright @ 2009 www.car388.com All rights reserved. 蜀ICP备12014226号-2 增值电信增值业务许可证:川B2-20190647 服务电话:028-87038205 87039205 87020205 川公网安备 51010502010015号 公司地址:成都市龙泉驿区经开区南二路309号 鼎峰动力港 企业办公总部基地 12栋
2025-05-24.-.V28**VHTML-2025-V18-11-5---2-