[返回列表.]    [免费下载畅易手机版APP ]

用户 leixiaoq **当前提问:发动机控制图 还有空气流量计图

发动机控制图 还有空气流量计图

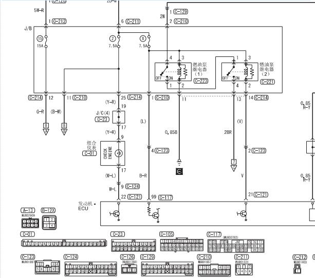
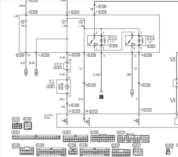
.尊敬的用户,欢迎你使用在线客服,你的问题客服人员已为你处理完毕,请下载附件,如有疑问,欢迎和我们联系!.2006年奇瑞瑞虎4G63S4M发动机电路图

附件:5560878999360.rar


用户 leixiaoq ***其他客服问题:
  给我找一下这个鼓风机的lin线电路图,还有鼓.. 保时捷卡宴2015-CJT[WP1AG292XE** ]
  电子节气门控制电路图和继电器位置.. 宝马523LI2012-N52[LBVFP3902C** ]
  后尾门电路图.. 汉腾X5汉腾18-4G15[LK5A6D1K2J** ]
  给我找一下这个刹车灯开关电路图.. 长丰猎豹 CS102017- CF4G15T [LN86GAAF5H** ]
  安全气囊的位置和电路图.. 奥迪A4L2009-CDZ[LFV3A28K49** ]
  这个车的正时.. 江淮 帅铃 2016- D19TCID7 [LJ11PABDXH** ]
以下是 奇瑞 相关车型的客服问题,希望对您有帮助
 奇瑞瑞虎1.8发动机电路图 发动机电脑是64+64..奇瑞瑞虎SQR7180T11T7 201007 SQR481FC [LVVDB21B7A**]
 全车电脑版位置图..奇瑞瑞虎 2009 1 [LVVDB11B2B**]
 水箱风扇控制电路,在电脑上的电路图不能放..奇瑞瑞虎 09 SQR481F [LVVDB11B19**]
 电脑板针脚图,谢谢.. 奇瑞 瑞虎3 2016 SQRE4G16 [LVVDB11B8G**]
 奇瑞报B3045,查故障码解决方法..奇瑞瑞虎DR 2010 1 [LVVDB11B8A**]
 2017年奇瑞瑞虎7发动机电路图和变速箱电路图..奇瑞瑞虎7 2017年 SQRE4T15B [LVVDB21B6H**]
 10年瑞虎 空调系统电路图 软件上的不一样..奇瑞瑞虎 10 1.6
 奇瑞瑞虎8怎么没有制动系统的简述和电路图..奇瑞瑞虎8 2018 1 [LVTDB21B5J**]
  电脑版针脚图..奇瑞瑞虎 2009 481 [LVVDB11B6A**]
 正时安装图..奇瑞瑞虎5 2014 SQR484F [LVTDB24B8E**]
 奇瑞瑞虎全车电路图..奇瑞汽车有限公司瑞虎 2012 1.6 [LVVDB11B9C**]
 四驱电脑安装位置..奇瑞瑞虎8 22 SQRF4J20 [LVTDD24B6N**]

Copyright @ 2009 www.car388.com All rights reserved. 蜀ICP备12014226号-2 增值电信增值业务许可证:川B2-20190647 服务电话:028-87038205 87039205 87020205 川公网安备 51010502010015号 公司地址:成都市龙泉驿区经开区南二路309号 鼎峰动力港 企业办公总部基地 12栋
2025-05-24.-.V28**VHTML-2025-V18-11-5---2-