[返回列表.]    [免费下载畅易手机版APP ]

用户 15752495 **当前提问:全车 线路图与故障代码

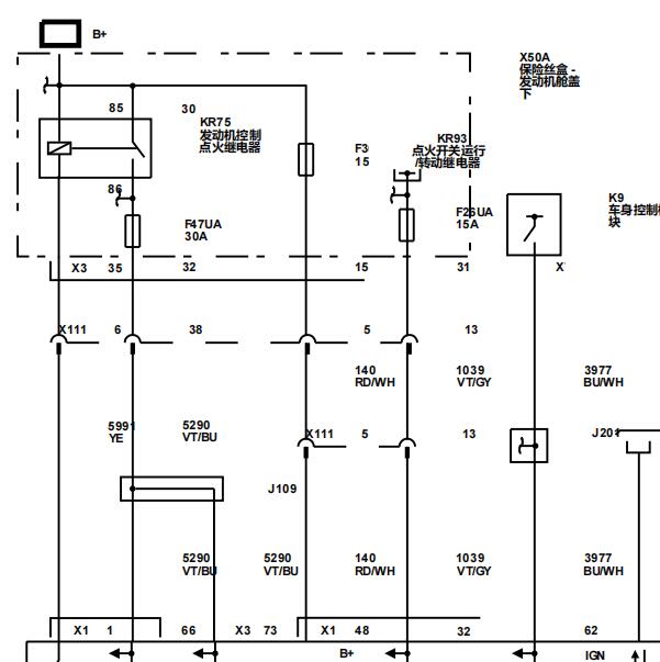
全车 线路图与故障代码

.尊敬的用户,欢迎你使用在线客服,专职客服已微信与您取得联系,您表示需要发动机变速箱和防盗电路图,你的问题客服人员已为你处理完毕,请下载附件,如有疑问,欢迎和我们联系!2023年别克威朗PRO发动机变速箱和防盗电路图.

附件:28402286718427.zip


用户 15752495 ***其他客服问题:
  长安CS75 蓝鲸版的全景资料图和线路图.. 长安CS752021.12-JL473ZQ5[LS4ASE2E4M** ]
  发动机电脑板针脚图和发动机线路图.. 奇瑞商用车悍虎2016.01-4JB1T[LVMY104Z9G** ]
  前大灯的线路图.. 北京奔驰E300L2011-272952[LE4HG5EB1B** ]
  全车线路和控制盒安装位置.. 长安览拓者2022-GW4D20M[LSCBBZ2GXN** ]
  前大灯线束图.. 北京奔驰E260CGIL2011-271860[LE4HG4HB4B** ]
  驾驶辅组ADAS线路图.. 东风日产探陆2024-KR20DDET[LGBRBPE41R** ]
以下是上汽通用相关车型的客服问题,希望对您有帮助
 仪表的针脚图和定义..上汽通用五菱6301.5 手动 舒适型 2011 L2C(1.5) [LZWAEAGA6C**]
 电脑《BOSCH》两种电脑图1NOTRONIC-8613-0039,ECU-05..上汽通用五菱之光 2008 BOSCH
 五菱宏光S 1.5风扇电路图对不上..上汽通用五菱汽车股份有限公司五菱宏光S。 2019-08 LAR [LZWADAGA8K**]
 环境识别电路图..上汽通用英朗 2011.01 LDE [LSGPB64UXB**]
 上汽荣威750d雷达蜂鸣器位置..上汽通用荣威750d 07 asd [1465465**]
 车身电脑版每个插头链接的东西..上汽通用别克昂科威 2016 LFV [LSGXE8355H**]
 2022款上汽通用五菱宏光V空调控制电路图..上汽通用五菱五菱宏光V 2022 LAR [LZWADAGA4L**]
 节电器继电器电路图..上汽通用君越2.0T 手自一体 28T 精英型 2018 LTG(2.0) [LSGZJ53L7J**]
 有遥控 无智能(一键启动)智能主控模块电..上汽通用全新英朗 17 L2B [LSGKE54H8H**]
 动力转向电路图和ABS电路图..上汽通用凯迪拉克XT4 2018年12月 LSY [LSGZK83L0K**]
 气囊电脑针脚图..上汽通用CT6 17年 LTG [LSGKR53L9H**]
 凯迪拉克SLS v6 2.8L发动机电路图..上汽通用凯迪拉克凯迪拉克赛威sls 2007 lp1 [LSGDE53T47**]

Copyright @ 2009 www.car388.com All rights reserved. 蜀ICP备12014226号-2 增值电信增值业务许可证:川B2-20190647 服务电话:028-87038205 87039205 87020205 川公网安备 51010502010015号 公司地址:成都市龙泉驿区经开区南二路309号 鼎峰动力港 企业办公总部基地 12栋
2025-05-22.-.V28**VHTML-2025-V18-11-5---2-