[返回列表.]    [免费下载畅易手机版APP ]

用户 百车 **当前提问:2009款进口标致308电路图

2009款进口标致308电路图

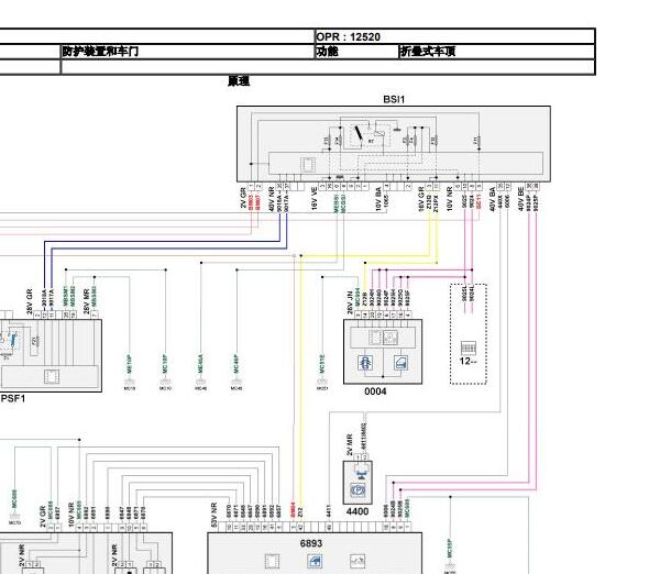
.尊敬的用户,您好!客服无法通过电话微信QQ联系到您本人,抱歉该车的资料没有更新到平台上,需要从后台资料系统里一页一页提取,不是现成电子版资料,资料信息庞大,提取处理时间长,请告知客服具体所需部分,客服好针对性的给您提取资料!客服暂时为您处理了敞篷电路图,请下载附件,给您带来不便,请谅解!2010年标致308CC敞篷电路图.

附件:91442259729128.rar

附件打开怎么是空白的

.尊敬的用户,欢迎你使用在线客服,客服试了下载附件解压后是有资料的,由于客服无法通过电话微信QQ联系到您本人并单独为您传送资料。所以客服重新为您处理的PDF文档格式的资料,请直接下载查看,如还是不行请提供一下邮箱,客服为您发到邮箱里,您在邮箱下载查看。如有疑问,欢迎和我们联系!.

附件:84592332718877.pdf


用户 百车 ***其他客服问题:
test:
  玛莎拉蒂总裁维修手册来一份.. 玛莎拉蒂总裁09-吗39R[ZAMJK39E59** ]
  要一个北其威旺 发动机电脑针脚图m20 .. 啊发个人我大概北汽威旺M2016-A122[LNBMDLAA2G** ]
  智能防盗这部分的线路图.. 英菲尼迪Q50L18-274A[lgbw1pe08j** ]
  奔驰G500全车线路图.. 奔驰G50011年-273 963[WDCYC3GF5C** ]
  无钥匙进入及射频模块线路图 .. 长安欧尚 2017-DAM15B[ls4ase2e1h** ]
  全车! 中文! 电路图.. 长安福特福克斯14年-CAF483Q0[LVSFCFAE4E** ]
以下是标致相关车型的客服问题,希望对您有帮助
 启动控制线路..标致508 2013 1 [LDCB13R40D**]
 标致4008故障码P1657 维修资料..标致4008 2016 10UF01 5G02 [LDCP1124XG**]
 自波箱电脑到BSI通信电路图..标志308 2014 1·6 [LDC953T37E**]
 标致2008遥控一键智能启动部分电路图来一份..标致2008 2014 M745
 发动机大修数据和螺丝扭矩..标致 RCZ 2011 5F02 [ VF34J5FV1**]
 麻烦帮我找下进口标致308的空调线路图..进口标致308 10 5FT [VF34U5FTXA**]
 凸轮轴位置传感器..标致307 2006 N6A 10XA3A PSA [LDC923L287**]
 曲轴皮带盘螺栓拧紧力矩..标致标致508 2011 PSA 3FY 10XP01 [LDCB13R41B**]
 标志308 手动档 节气门线路图 ..东风标志308 2013 NFP [LDC953T27D**]
 变速箱电路图..标致301 16 NFP [LDC633T46G**]
 标致301 2014款1.6L自动舒适版 变速箱电路图..标致301轿车 2015 NFP [LDC633T36F**]
 标志308全车电路图,要全车的平台的不全..标志308 15 NFP

Copyright @ 2009 www.car388.com All rights reserved. 蜀ICP备12014226号-2 增值电信增值业务许可证:川B2-20190647 服务电话:028-87038205 87039205 87020205 川公网安备 51010502010015号 公司地址:成都市龙泉驿区经开区南二路309号 鼎峰动力港 企业办公总部基地 12栋
2025-01-12.-.V25VHTML-2025-V18-11-5---2-