[返回列表.]    [免费下载畅易手机版APP ]

用户 guopan18 **当前提问:标致308冷却风扇电路图

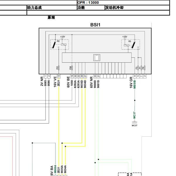
标致308冷却风扇电路图

.尊敬的用户,欢迎你使用在线客服,你的问题客服人员已为你处理完毕,请下载附件,如有疑问,欢迎和我们联系!2013年标致308冷却风扇电路图.

附件:2931499726769.rar


用户 guopan18 ***其他客服问题:
test:
  07年奥迪A4油泵继电器和油泵控制模块电路图.. 奥迪A4(120kw)2007.02-BKB[LFV3A28E57** ]
  P0237-00 故障码资料.. 别克昂科拉2014- LFF [LSGJB84J3E** ]
  双龙柯兰多正时装配资料.. 韩国双龙柯兰多14-172950[kpta0a189e** ]
  发动机电脑控制电路图.. 东风牌k072010-EQ465i、30[LGK022K67A** ]
  雨刮器 开关线路图.. 东风标致牌3082014-NFP[LDC953T3XE** ]
  幻速s3 连杆瓦 力矩多少.. 北汽幻速S314-1[LNBMDBAF1F** ]
以下是东风标致相关车型的客服问题,希望对您有帮助
 东风标致207全车原件位置图及发动机电脑针脚..东风标致207 2009 TU3F [LDC611P239**]
  P1A8D P16BB 这两个故障码 含义在哪找的,没..标致308 16年 1.6 [ldc983t45h**]
 DS9电路图,维修手册..东风标致DS9 2021 5G06
 全车电路图ss..东风标致308 2019/2020 . [.**]
 标志308变速箱资料和阀体分解图..东风标志308 12 1.6
 09款标致308cc车窗和敞篷的电路图、维修手册..标致308cc 2010 ep6dt [VF34B5FT6A**]
 标志308CC可折叠车顶电路图..标志308CC 2009 1.6 [VF34B5FT69**]
 点火线圈电路图..标致308 14 1.6 [LDC953T39E**]
 07款标致307,2.0车型。遥控器匹配怎么做?..东风标致307 2007 2.0
 碳罐电磁阀电路图..标志308sw 2010 5ft 1.6 [VF34U5FT5A**]
 标致408轮速传感器线路图..东风标致标致408 12 PSA RFN 10LH3X [LDC943X20C**]
 16年标致408仪表怎么拆卸,拆卸方法..东风标致408 2016 33333

Copyright @ 2009 www.car388.com All rights reserved. 蜀ICP备12014226号-2 增值电信增值业务许可证:川B2-20190647 服务电话:028-87038205 87039205 87020205 川公网安备 51010502010015号 公司地址:成都市龙泉驿区经开区南二路309号 鼎峰动力港 企业办公总部基地 12栋
2025-01-12.-.V25VHTML-2025-