[返回列表.]    [免费下载畅易手机版APP ]

用户 京通 **当前提问:菲亚特空调系统的电路图

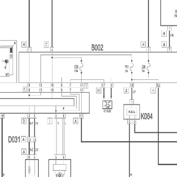
菲亚特空调系统的电路图

.尊敬的用户,欢迎你使用在线客服,你的问题客服人员已为你处理完毕,请下载附件,如有疑问,欢迎和我们联系!2011年菲亚特博悦空调电路图.

附件:56782365213576.rar


用户 京通 ***其他客服问题:
  北京现代ix35 g4na发动机机械资料.. 北京现代ix3514年08月-G4NA[LBELMBKC9E** ]
  钥匙匹配方法.. 广本雅阁2016-R20Z4[LHGCR1629G** ]
  发动机线路图.. volvoxc402020-1.5T[LYVXF15D2L** ]
  12年夏朗四轮定位数据.. 大众夏朗13年5月-EA888
  发动机大修大瓦、小瓦、缸盖螺丝力矩.. 一汽马自达CX-42018-PE[LFPM4APE6J** ]
  发动机电脑,自动箱电脑,在什么位置.. 北京现代途胜2008-G4GC[LBEJMBKB18** ]
以下是 菲亚特 相关车型的客服问题,希望对您有帮助
 电子转向NGM线路图..菲亚特博悦 08 1.4L [ZFAFAGA328**]
 全车电路图..菲亚特博悦 2009 198A4000 [ZFAFBGA32B**]
 进口菲亚特博悦方向机电路图..09博悦 09 1.4 [ZFAFAGA309**]
 我需要这个车型的维修资料..菲亚特博悦 2010 198A40000 [ZFAFAGA379**]
 变速箱维修图纸..菲亚特(FIAT)博悦 2011 198A4000 [ZFAFBGA34B**]
 变速箱的维修资料发372913527@qq.com..菲亚特博悦 1 1 [ZFAFBGA3XC**]
 菲亚特博悦雨刮电机工作电路图..菲亚特博悦 2008 000 [ZFAFAGA348**]
 博悦驾驶室保险盒电路图BSII..菲亚特博悦 2008 mt [ZFAFAGA388**]
 需要一份10年的菲亚特博悦油浮子电路图..菲亚特博悦 2010 1.4T
 P2931-72,P2932-72 故障码资料.. 菲亚特 菲翔 2012 343A0027 [LWVAA258XD**]
 菲亚特博悦1.4T发动机电脑端子头..菲亚特博悦 2011 198A4000
 请问一下09年博悦全车线路图有没有 发一下 ..菲亚特博悦 09 198A4000 [ZFAFAGA329**]

Copyright @ 2009 www.car388.com All rights reserved. 蜀ICP备12014226号-2 增值电信增值业务许可证:川B2-20190647 服务电话:028-87038205 87039205 87020205 川公网安备 51010502010015号 公司地址:成都市龙泉驿区经开区南二路309号 鼎峰动力港 企业办公总部基地 12栋
2025-05-21.-.V28**VHTML-2025-V18-11-5---2-