[返回列表.]    [免费下载畅易手机版APP ]

用户 13343255 **当前提问:燃油泵电路图,惯性断油IFS开关位置

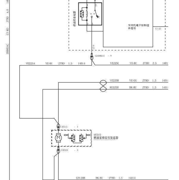
燃油泵电路图,惯性断油IFS开关位置

.尊敬的用户,欢迎你使用在线客服,你的问题客服人员已为你处理完毕,请下载附件,如有疑问,欢迎和我们联系!.2012年福特福克斯发动机油泵电路图

附件:94822473295451.zip


用户 13343255 ***其他客服问题:
  发动机电脑位置 维修手册,电路图.. 三菱V45 1999-V6 3.5 6G74GDI[没有** ]
  发动机点火线圈电路图,我这车是6缸独立点.. 三菱帕杰罗V451999-6G74[没有** ]
  发动机维修资料和电路图.. 丰田酷路泽1998-2uz[JT3HT05J1Y** ]
  发动机P145F故障码 资料.. 北京BJ402019-2.3T[LNBRCFDK3K** ]
  发动机电脑位置,电路图.. 三菱帕杰罗V451999-4G74[没有** ]
  发动机点火电路图.. 三菱帕杰罗V451997-6G74[没有** ]
以下是福特相关车型的客服问题,希望对您有帮助
 我要全部电路资料..福特探险者 2015年 2.0T [1FM5K7D90F**]
 福特翼虎发动机电脑端子图..福特翼虎 05年 3.0
 发动机电脑的电源,接地,通讯,帮忙给个文..福特野马mustang 2015 1 [1FA6P8THXF**]
 蒙迪欧高压油泵检测方法..福特蒙迪欧 2014 2
 福特麦柯斯发动机电路图..福特麦柯斯 2007 Duratec-He [LVSHFSAF38**]
 后备箱电路图..长安福特福克斯-三厢1.5T 自动 EcoBoost 180 锋潮型 2021 CAF384WQ06(1.5) [LVSHCFAU5M**]
 全车维修手册,..福特F150福特猛禽F150 2010 v8 [1FTFW1EV2A**]
 这车倒车雷达线路帮我找下..福特福克斯 2011 CAF483Q0 [LVSHCFAE7B**]
 求2015年蒙迪欧1.5车身电路图..福特蒙迪欧 2015 CAF479WQ0 [LVSHFFALXF**]
 遥控器电路图 03SS..福特探险者福特探险者 2013 3.5L [1FM5K8F81D**]
 正时..福特翼搏 2014 1.0T [LVSHKAMNOE**]
 我需要一份探险者天窗电路图..福特探险者 2013 8 [1FM5K8F8XD**]

Copyright @ 2009 www.car388.com All rights reserved. 蜀ICP备12014226号-2 增值电信增值业务许可证:川B2-20190647 服务电话:028-87038205 87039205 87020205 川公网安备 51010502010015号 公司地址:成都市龙泉驿区经开区南二路309号 鼎峰动力港 企业办公总部基地 12栋
2025-05-21.-.V28**VHTML-2025-V18-11-5---2-