[返回列表.]    [免费下载畅易手机版APP ]

用户 17662360 **当前提问:P0335故障码诊断流程,发动机电脑板针

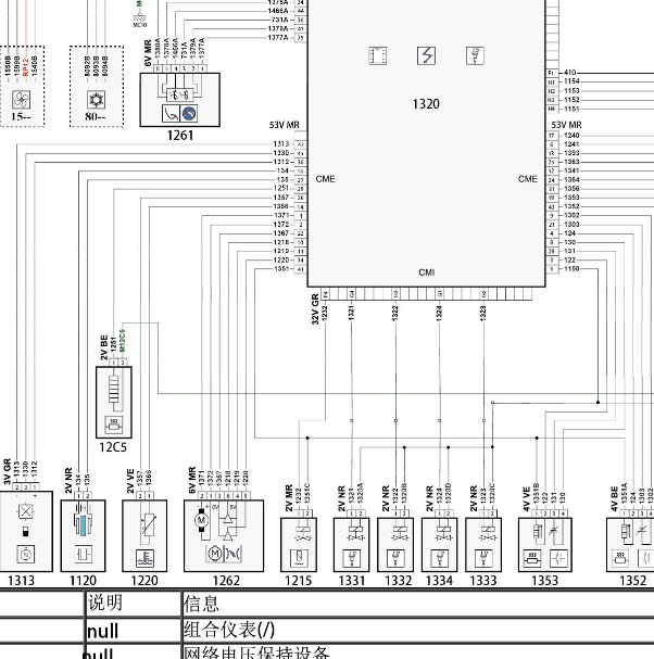
P0335故障码诊断流程,发动机电脑板针脚定义电路图,转速传感器位置

.尊敬的用户,欢迎你使用在线客服,非常抱歉该没有故障码维修和针脚资料,客服给您查找了发动机电路图和转速传感器位置,请下载附件,如有疑问,欢迎和我们联系!.2015年东风风神L60发动机电路图

附件:44252761414302.rar


用户 17662360 ***其他客服问题:
  继电器位置,发动机电路图,空气流量计电路.. 奔驰汽车E 2402.6 自动2004-112 913(2.6)[WDBUF61J14** ]
  电瓶正极的引爆装置电路图.. 北京奔驰C 200 L2.0T 手自一体 运动版(改款)2017-274 920(2.0)[LE4WG4CB4H** ]
  车身模块的针脚定义求生模块的电路图。.. 东风汽车风光S5602.0 无级 精英型2021-SFG20A(2.0)[LVZA53P95M** ]
  空调混合风门电机位置.. 吉利汽车远景SUV(X6)1.4T 自动 豪华型2020-JLB-4G14TB(1.4)[L6T7722Z9M** ]
  变速箱冷却液阀位置.. 上汽大众帕萨特PHEV1.4T 双离合 精英版2019-DJZ(1.4)[LSVCZ2C47K** ]
  Egr真空管资料,%%%176623607@qq.com.. 南京依维柯宝迪2.5T 手动2016-SOFIM8140.47Z5(2.5)[LNPHBUAG1G** ]
以下是东风汽车相关车型的客服问题,希望对您有帮助
 ABS系统维修手册..东风汽车华神载货车 2021/2022 . [.**]
 高压控制部分 ..东风汽车EC36EV 2018 TZ205XSFDM(电动机)(电动) [LVPA5B4B6K**]
 发动机线路图..东风汽车俊风 2013.7 LJ465Q-2AE6 [LGDKD21D3C**]
 电机控制器电路图,双电机的..东风汽车俊风E17EV 2017 FT175TZX-001(电动机)/FT175TZX-001(电动机)(电动) [LDP51A964H**]
 EPB模块安装位置帮查一下..东风汽车风光5801.5T 无级 智联型升级版 2018 SFG15T(1.5) [LVZA53P95J**]
 东风英菲尼迪Q50L气囊线路图..东风汽车公司英菲尼迪Q50L 18年 274A [LGBW1PE02J**]
 需要空调系统电路图..东风汽车御风2.5T 手动 领运版 厢货长轴高顶 2019 ZD25D14-5N(2.5) [LGFB7A1J8K**]
 东风风神AX4保养归零如何操作..东风汽车东风风神AX4 2017 DFM A16 [LGJE3FE06H**]
 室外保险丝盒油水分离器保的险丝都管什么电..东风汽车东风御风 2015年 07月 ZD25D14-4N [LGFB6A1F8E**]
 发动机电路图..东风汽车C722.0 手动 LV1超牛版加长版 2021 SFG20B(2.0) [LVZUP31D2M**]
 伊菲尼迪QX50Q气囊电路图..东风汽车有限公司qx50 2018年07月 kr20 [lgbw2pe46j**]
 13年东风日产启辰D50防盗控制系统电路图..东风汽车有限公司DFL7166MAK4 2013 07 HR16 [LGB612E28D**]

Copyright @ 2009 www.car388.com All rights reserved. 蜀ICP备12014226号-2 增值电信增值业务许可证:川B2-20190647 服务电话:028-87038205 87039205 87020205 川公网安备 51010502010015号 公司地址:成都市龙泉驿区经开区南二路309号 鼎峰动力港 企业办公总部基地 12栋
2025-05-20.-.V28**VHTML-2025-V18-11-5---2-