[返回列表.]    [免费下载畅易手机版APP ]

用户 wzn1008 **当前提问:宝马X5线路图

宝马X5线路图

.尊敬的用户您好,宝马的资料没有更新到平台上,需要从后台资料系统里一页一页提取,不是现成电子版资料,资料信息庞大,提取处理时间长,为了不影响对您的服务,请告知客服具体是所需部分,客服好针对性的给您提取资料!给您带来不便,请谅解!.

雨刮,喇叭的电路图

.尊敬的用户,欢迎你使用在线客服,你的问题客服人员已为你处理完毕,请下载附件,如有疑问,欢迎和我们联系!04年宝马X5雨刮线路图.

附件:6692431065756.rar

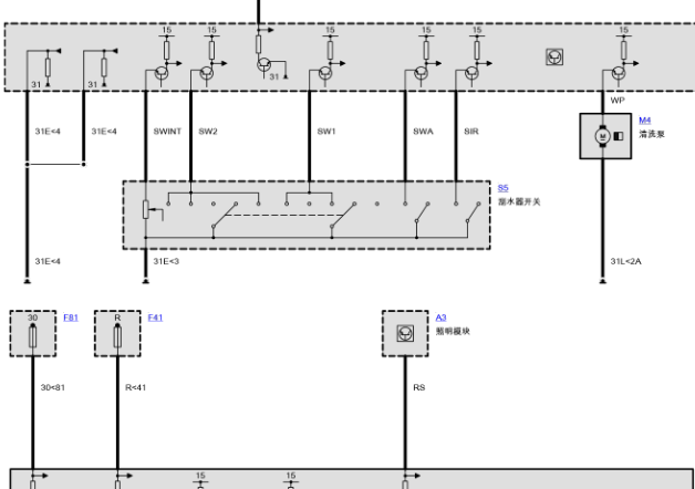
灯光的线路图,还有控制模块的位置图,保险丝的说明位置

.尊敬的用户,欢迎你使用在线客服,你的问题客服人员已为你处理完毕,请下载附件,如有疑问,欢迎和我们联系!04年宝马X5保险丝位置.

附件:1922431064704.rar

查到了吗

还有模块位置的介绍有吗

照明模块,还有基本模块安装在哪个位置

.尊敬的用户,欢迎你使用在线客服,你的问题客服人员已为你处理完毕,请下载附件,如有疑问,欢迎和我们联系!04年宝马X5 A3模块位置.

附件:1213431068764.rar

A1模块的位置

还有S2的位置

.尊敬的用户,欢迎你使用在线客服,你的问题客服人员已为你处理完毕,请下载附件,如有疑问,欢迎和我们联系!04年宝马X5  S2位置图.

附件:3551431064197.rar


用户 wzn1008 ***其他客服问题:
test:
  沃尔沃XC60正时资料.. 沃尔沃xc602014-B5204T9[LYVDE63A7F** ]
  发动机平衡轴的正时链条的标记在哪里,如何.. 奥迪奥迪A607-BPJ[LFV3A24F67** ]
  欧宝维修资料.. 欧宝威达2006-Z22SE[WOLZC54F76** ]
  路虎发现3的四轮定位数据.. 路虎发现308-不清楚[SALAN24498** ]
以下是宝马相关车型的客服问题,希望对您有帮助
 左后车门限位器更换..宝马750 07 N62 [WBAHN81057**]
 宝马N52B30BF发动机维修手册..宝马330 2009 N52B30BF [WBAWB5100A**]
 宝马2C24 DME废气转换器前氧传感器混..宝马320i 2006 n46
 宝马750发动机线路..宝马750LI 2008 N63 [CY50747**]
 油底壳拆装步骤方法..宝马XI 12 N46B20CC [WBAVL3101C**]
 CAS电路图和手册..宝马汽车X5 xDrive35i [美规]3.0T 手自一体 美规版 2012 N55B30A(3.0) [5UXZV4C56C**]
 电脑板针脚图..宝马宝马523LI 2012 N52B25AF [LBVFP3907C**]
 变速箱电脑位置图..陆风X5 2016 1 [LVXCAHBAXG**]
 CD9304 然后帮我查一下电子水泵的线路图机油..宝马740Li 2010 N54B30A [WBAKB4107A**]
 大燈系統線路&音響系統線路圖..寶馬X5 2006 汽油 [WBAFA11070**]
 后减控制电磁阀位置,继电器,大泵位置以及..宝马730LI 2011 N52B30AF [WBAKB2109B**]
 氛围灯电路图..宝马525 2019 b48 [LBVKY110XJ**]

Copyright @ 2009 www.car388.com All rights reserved. 蜀ICP备12014226号-2 增值电信增值业务许可证:川B2-20190647 服务电话:028-87038205 87039205 87020205 川公网安备 51010502010015号 公司地址:成都市龙泉驿区经开区南二路309号 鼎峰动力港 企业办公总部基地 12栋
2025-01-18.-.V25VHTML-2025-