[返回列表.]    [免费下载畅易手机版APP ]

用户 18192608 **当前提问:2007年雪铁龙C5的底盘升降维修手册和

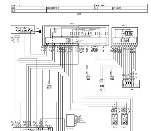
2007年雪铁龙C5的底盘升降维修手册和电路图

.尊敬的用户,欢迎你使用在线客服,你的问题客服人员已为你处理完毕,请下载附件,如有疑问,欢迎和我们联系!07年 雪铁龙C5 底盘升降电路.

附件:2667443742150.rar

..尊敬的用户,欢迎您使用在线客服,您需要的资料已更新了全系统的维修手册,请您直接进入畅易平台查询!查询方法:国外厂家 ->Citroen(雪铁龙)-C5-2005-2009[ 维修手册/诊断 ] ..Citroen(雪铁龙)-C5-2005-2009[ 维修手册/诊断 ] .


用户 18192608 ***其他客服问题:
test:
  陆风X6全车电路图.. 江西江铃牌陆风X62008-JX493ZQ5A[LVXCCBBA68** ]
  众泰Z700变速箱电路图与维修手册.. 湖南江南汽车制造有限公司Z7002016-08-TN4G18T[LJ8B7D3GXG** ]
  请求勇士乔治巴顿F450的空调系统电路图.. 勇士乔治巴顿F4502016年01月-Triton V10[1FDUF4HY9G** ]
  玛莎拉蒂Ghibli空调与鼓风机线路图与维修手册.. 菲亚特集团汽车股份公司玛莎拉蒂Ghibli2014-11-M156C[ZAMSS57E2F** ]
  全车线路图以及维修手册.. SEATSEAT S.A.2012.2-CCZ[VSSFL51P9C** ]
  遥控门锁电路图.. 一汽大众大众 C-TREK 蔚领2017-06-30-CST 1.4T[LFV2B2157H** ]
以下是雪铁龙相关车型的客服问题,希望对您有帮助
 15年爱丽舍发动机电脑线路图,刚才给的不对..雪铁龙爱丽舍 15 1.6
 麻烦发一份14年雪铁龙变速箱电脑28+28针的针..雪铁龙爱丽舍 14年2.0L NSP [LDC643T3XE**]
 空调蒸发箱温度传感器电路图BSI电路图..雪铁龙爱丽舍 2018 NFP [LDC6432T9J**]
 雪铁龙C5右侧电动后视镜线路图,资料库的不..雪铁龙C5 2014 11 [LDCA13247E**]
 16年雪铁龙爱丽舍的变速箱电路图 资料里的看..雪铁龙爱丽舍 2016 1.6
 08年雪铁龙C2 1.6 发动机电脑针脚图..雪铁龙C2 08 n6a 10xa3A PSA [LDC621L358**]
 11年雪铁龙世嘉维修手册..雪铁龙世嘉 2011 N6A10XA3APSA
 爱丽舍油泵继电器和各个继电器的位置分布..雪铁龙爱丽舍 2013 N6A 10FX3A PSA [LDC703L26D**]
 帮我找一下鼓风机控制电路图,鼓风机电阻是6..雪铁龙DS5LS 2014 WFZ [LPAA2FCA4E**]
 雪铁龙C4L点烟器电路图..雪铁龙C4L 2014 Wfz [Ldcc23y4xd**]
 世嘉发动机正时资料..雪铁龙世嘉 2016 CA4GX15 [LFB0D1368G**]
 2007年雪铁龙塞纳空调电路图和保险丝说明..雪铁龙塞纳 2007 999 [9999**]

Copyright @ 2009 www.car388.com All rights reserved. 蜀ICP备12014226号-2 增值电信增值业务许可证:川B2-20190647 服务电话:028-87038205 87039205 87020205 川公网安备 51010502010015号 公司地址:成都市龙泉驿区经开区南二路309号 鼎峰动力港 企业办公总部基地 12栋
2025-01-18.-.V25VHTML-2025-V18-11-5---2-