[返回列表.]    [免费下载畅易手机版APP ]

用户 惠成 **当前提问:17年宝马320,多功能方向盘电路图

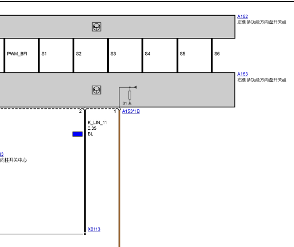
17年宝马320,多功能方向盘电路图

.尊敬的用户,欢迎你使用在线客服,抱歉资料库里没有17年宝马的资料,客服为您处理了16年11月份的320LI电路图参考,你的问题客服人员已为你处理完毕,请下载附件,给您带来不便,请谅解!.16年宝马320LI多功能方向盘电路图

附件:4057593028097.rar

已评价:5星好评

.尊敬的用户,欢迎您使用在线客服,您需要的资料已更新了全系统的电路图,请您直接进入畅易平台查询!查询方法;国外厂家 ->BMW(宝马)-3系-320Li-2017-2018[ 线路图 ].2017-2018年宝马320全车电路图


用户 惠成 ***其他客服问题:
  智跑车身电脑电路图.. 北京现代智跑2012-2.0排量
  B1412-96 静态继电器盒 维修手册和电路图.. 路虎新揽胜2016-3.0[SALGA2VF5G** ]
  来一份水温传感器电路图.. 吉利金刚13-1.5[LB37624S5C** ]
  11年长城哈佛H5柴油2.0 的 发动机电脑针脚图.. .柴油版h511年-.[.** ]
以下是华晨宝马相关车型的客服问题,希望对您有帮助
 行李箱电路图..宝马320LI 13NIAN N20 [LBV3M2103D**]
 油泵控制器在哪..华晨宝马320i2.0 手自一体 领先型 2006 N46B20CB(2.0) [LBVVA96036**]
 华晨宝马520后倒车雷达线路图..华晨宝马BMW7201KL, 2013,03 N20B20D [LBVCU1100D**]
 燃油箱泄露诊断模块的压力开关和曲轴箱冷却..华晨宝马X2 sDrive25i2.0T 双离合 领先型 M运动套装 2020 B48A20C(2.0) [LBVYH3409L**]
 320I维修手册..华晨宝马BMW7200MD(BMW320i) 10年12月 N46B20E [LBVPS5109B**]
 麻烦帮我查一下这车保险定义图 ..华晨宝马520Li2.0T 手自一体 典雅型 2013 N20B20D(2.0) [LBVCU1105D**]
 天窗后排水口位置..华晨宝马320i2.0 手自一体 进取型 2008 N46B20CC(2.0) [LBVVG790X8**]
 发动机部分电路图。总线KI.15N控制..华晨宝马523Li 12 N52B25AF [LBVFP3907C**]
 请问对发动机正时的时候,一缸上止点时油底..华晨宝马宝马320直例4缸 2006 E90 N52发动机
 华晨宝马316i排量1.6t维修手册..华晨宝马316i 2014 n13b16a [lbv3a1406e**]
 电机保养的维修手册..华晨宝马i3eDrive 35 L 2024 HA0001N0(电动机)(电动) [LBV81BE00P**]
 灯光开关控制中心控制单元安装位置在哪里..华晨宝马宝马318i 2005年1月 N46B20CA [LBVEY97064**]

Copyright @ 2009 www.car388.com All rights reserved. 蜀ICP备12014226号-2 增值电信增值业务许可证:川B2-20190647 服务电话:028-87038205 87039205 87020205 川公网安备 51010502010015号 公司地址:成都市龙泉驿区经开区南二路309号 鼎峰动力港 企业办公总部基地 12栋
2025-04-29.-.V25