[返回列表.]    [免费下载畅易手机版APP ]

用户 和通 **当前提问:19款全新别克gl8 电路图 娱乐系统

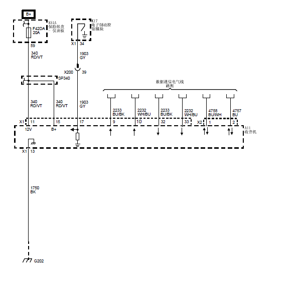
19款全新别克gl8 电路图 娱乐系统

.尊敬的用户,欢迎你使用在线客服,抱歉暂时没有19年GL8的资料,给您处理的18年全新一代GL8的相关线路图参考,请下载附件,如有疑问,欢迎和我们联系!.18年 别克GL8娱乐线路图

附件:4496928447278.rar


用户 和通 ***其他客服问题:
test:
  发动机线路图.. 北汽昌河爱迪尔04-DA465Q-2/D1-1.0L[LKEBC51A64** ]
  10年佳乐can 通讯总线线路图.. 韩国佳乐2010-2.0[KNAHH8117B** ]
  车身控制电路.. 丰田锐志2006-5GRFE[LFMBE22D06** ]
  后端电脑线路图和保险盒位置图.. 保时捷BOXSTER9872006-M96[WP0CA29806** ]
  ABS系统电路图.. 本田杰德2016年-R18Z6[LVHFR1828G** ]
  发动机电脑针脚图.. 本田思域2010-R18A1[LVHFA1616A** ]
以下是上海通用相关车型的客服问题,希望对您有帮助
 凯迪拉克赛威发动机电路图和针脚图..上海通用SLS 11年9月 LNF(2.0升) [LSGDE5391B**]
 电动门锁的电路图,08年的资料上没有..别克GL8豪华版 2008 1 [LSGUD82C1A**]
 宝骏630发动机电脑针脚图..上海通用宝骏630 2016年3月 l2b [lzwaeaga9g**]
 遥控器怎没匹配..上海通用别克王朝 2010年2月制造 L34
 现在不能查OBD故障码了吗..上海通用别克新英朗 18年 LuJ
 查一下车身电脑在哪安装,主驾驶车门电路图..别克GL8GL8 17 2.0 [LSGUL83L8H**]
 变速箱端子定义图..别克GL8 2011 11 [LSGUA83B3B**]
 p0108进气歧管绝对压力(map)传感器电路高电..别克GL8 2007 a [a**]
 08年别克GL8ABS故障码C0550的含义及处理方法..别克GL8 08 LB8 [LSGDC82D88**]
 你好 给找一下2015年1.0排量宝骏标的斯帕克空..上海通用五菱斯帕克 2015 LMT [LZWADAGA1F**]
 09年别克GL8倒车灯电路图..上汽GL8 2009 111
 气缸点火顺序..上海通用雪弗兰新景程 2010 2H0

Copyright @ 2009 www.car388.com All rights reserved. 蜀ICP备12014226号-2 增值电信增值业务许可证:川B2-20190647 服务电话:028-87038205 87039205 87020205 川公网安备 51010502010015号 公司地址:成都市龙泉驿区经开区南二路309号 鼎峰动力港 企业办公总部基地 12栋
2025-01-16.-.V25VHTML-2025-V18-11-5---2-