[返回列表.]    [免费下载畅易手机版APP ]

用户 发强 **当前提问:神龙富康水箱风机电路图有吗

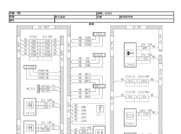
神龙富康水箱风机电路图有吗

.尊敬的用户,欢迎你使用在线客服,你的问题客服人员已为你处理完毕,请下载附件,如有疑问,欢迎和我们联系!富康冷却系统电路图.

附件:3156249023976.rar

最好把资料完善到富康车型中去,这样用户都方便了。已评价:5星好评


用户 发强 ***其他客服问题:
  有没有斯柯达明锐的散热风扇控制电路图.. 上海大众斯柯达明锐2008.11-BXX 2.0[LSVAC41Z88** ]
  宝马变速箱维修资料.. 华晨宝马320li2014,03-N20B20D[LBV3M2015E** ]
  有没有荣光的维修资料?.. 上海通用五菱五菱荣光-
  平台中怎么没有2016年上汽大通V80的维修手册.. 上汽大通V802016.06-SC25R136.1Q5[LSKG4GC11G** ]
  行人碰撞传感器位置.. 捷豹XF2019- PT204 [L2CBB3B20K** ]
  上汽大通发电机皮带,正时拆装维修说明有吗.. 大通SH6501A2D4-L2013,10-SC25R136.1Q4 2499ml[LSKG4GC11D** ]
以下是神龙富康相关车型的客服问题,希望对您有帮助
 N6A 10FX 3A PSA 型 发动机正时皮带对法 ..神龙富康富康988 2006·04 富康·
 富康16v维修手册..富康DC7160AXC 16V 2005年07月 N6A 10FX3A PSA [LDC241L2X5**]
 仪表电路..神龙富康dc7160axc.16v 2006.03 n6a10fx3a [ldc241l356**]
 富康车维修手册..神龙富康DC7160AXC 16V 2005-07 N6A 10FX3A PSA [LDC241L2X5**]
 大小瓦和缸盖的扭矩是多少,,发个正时图..神龙富康DC7141RPC 2003 0118744 [LDC131D273**]
 左右门锁电路图..神龙富康es600 2022 tz200xs059 [ldcd730e2n**]
 风扇控制线路图..神龙富康标志206 2008.10 N6A10XA3APSA
 求空调线路图..神龙富康DC7160AXC16V 2007 N6A10FX3APSA
 富康发动机电脑针脚定义 三个插头的那种..神龙富康DC7160AXC 2005 N6A 10FX3A [LDC241L265**]
 神龙富康水箱风机电路图有吗..神龙富康DC7160AXC 16V 2006,05 N6A 10FX3A PSA [LDC241L226**]
 富康发动机电脑针脚定义..神龙富康DC7160AXC 16V 2005 N6A 10FX3A [LDC241L265**]

Copyright @ 2009 www.car388.com All rights reserved. 蜀ICP备12014226号-2 增值电信增值业务许可证:川B2-20190647 服务电话:028-87038205 87039205 87020205 川公网安备 51010502010015号 公司地址:成都市龙泉驿区经开区南二路309号 鼎峰动力港 企业办公总部基地 12栋
1.-.V25VHTML-2025-V18-11-5---2-