[返回列表.]    [免费下载畅易手机版APP ]

用户 **当前提问:制动灯电路图

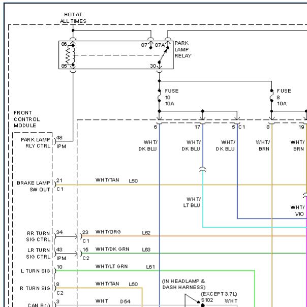
制动灯电路图

.尊敬的用户,欢迎你使用在线客服,你的问题客服人员已为你处理完毕,请下载附件,如有疑问,欢迎和我们联系!.2006年吉普大切诺基制动灯电路图

附件:23822683473260.zip

已评价:5星好评


用户 ***其他客服问题:
  雨刷电机和机盖锁 电路图 保险丝解释 .. 福建奔驰V 260 L2.0T 手自一体 豪华版2020-274 920(2.0)[LB1WG3E15M** ]
  奔驰S350 电动尾门模块在那.. 奔驰S35003年-不知
  一汽丰田陆地巡航舰 差速器电路图.. 一汽丰田陆地巡航舰2003-X[lfmgk07366** ]
  麻烦发我一份可以下载的发动机维修手册.. 江淮汽车瑞风S21.5 手动 舒适型2017-HFC4GB2.3D(1.5)[LJ12EKR29H** ]
  沃尔沃XC90 48 空调压力传感器电路图 空调系统.. 沃尔沃汽车XC90 48V2.0T 自动 B5 智行豪华版 7座2021-B420T2(2.0)[YV1LFL1EW2** ]
  制动开关图.. 丰田汽车ES2402.4 手自一体 豪华版2010-2AZ-FE(2.4)[JTHBW46G4B** ]
以下是北京吉普(现北京奔驰)相关车型的客服问题,希望对您有帮助
 查一个玻璃升降器的电路图..北京吉普(现北京奔驰)大切诺基 40004.0 自动 四驱版 2003 C698QA1(4.0) [LE4GJ78S73**]
 玻璃升降中控锁电路图..北京吉普(现北京奔驰)大切诺基 征途47004.7 自动 四驱版 2006 C8V93Q(4.7) [LE4GJ78N36**]
 助力油压风扇控制电路图,PDF格式的..北京吉普(现北京奔驰)大切诺基 47004.7 自动 四驱版 2001 C8V93Q(4.7) [LE4GJ78N53**]
 制动灯电路图..北京吉普(现北京奔驰)大切诺基 征程40004.0 自动 四驱版 2006 C698QA1(4.0) [LE4GJ78S66**]
 变速箱电路图,PDF的..北京吉普(现北京奔驰)大切诺基 40004.0 自动 四驱版 2003 C698QA1(4.0) [LE4GJ78S13**]

Copyright @ 2009 www.car388.com All rights reserved. 蜀ICP备12014226号-2 增值电信增值业务许可证:川B2-20190647 服务电话:028-87038205 87039205 87020205 川公网安备 51010502010015号 公司地址:成都市龙泉驿区经开区南二路309号 鼎峰动力港 企业办公总部基地 12栋
2025-01-11.-.V25VHTML-2025-