[返回列表.]    [免费下载畅易手机版APP ]

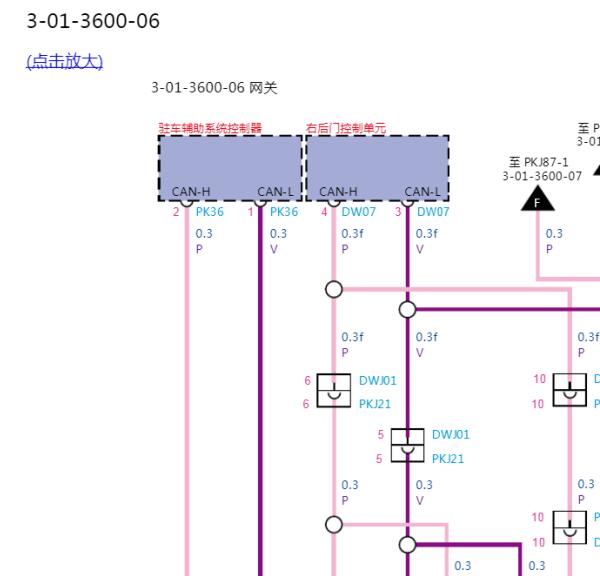
用户 13858909 **当前提问:通讯线路,连接到电池包内的低压插

通讯线路,连接到电池包内的低压插头 应该有2组通讯CAN 总线

.尊敬的用户,欢迎你使用在线客服,你的问题客服人员已为你处理完毕,请下载附件,如有疑问,欢迎和我们联系!.2018年腾势500网络通讯电路图

附件:22622858425104.zip


用户 13858909 ***其他客服问题:
  变速箱电脑针脚和实物不一样.. 长安福特经典福克斯-三厢1.8 手自一体 基本型2013-CAF483Q0(1.8)[LVSFCFAE1D** ]
  发动机/变速箱 /AB S系统线路和保险丝线路及.. 沃尔沃亚太S902.0T 手自一体 T5 智雅豪华版2020-B4204T26(2.0)[LVYPD25D0L** ]
  仪表针脚定义.. 东风俊风E11K2019-1[LDP51B969K** ]
  右后转向灯电路图 .. 路虎汽车Range Rover Sport [揽胜运动版]3.0T 手自一体 HSE 美规版2014-306PS(3.0)[SALWR2WFXE** ]
  这个保险盒和继电器,说明,先看下,还有点.. 日产骐达TIIDA2008-1[LGBG22E01A** ]
  混合动力/高电压系统保险丝引爆装置,这个.. 奥迪Q4 e-tron奥迪Q4 e-tron2023-1[LFVVB9G36P** ]
以下是腾势汽车相关车型的客服问题,希望对您有帮助
 通讯线路,连接到电池包内的低压插头 应该..腾势汽车腾势500时尚版 2018 2217TZ-XSA(电动机)(电动 [LC0DE6CB0J**]
 电池的防冻液怎么更换,怎么排空..腾势汽车腾势X PHEV2.0T 双离合 旗舰版 2020 BYD487ZQB(2.0 [LC0DD4C45M**]
 动力电池维修手册..腾势汽车腾势 2014/2015/2016/2017 电动 [LC0DE6CB0H**]
 帮忙查一下后尾灯的电路图吧..腾势汽车腾势D9 DM-i1.5T 无级 970 四驱尊荣型 2022 BYD476ZQC(1.5) [LC0DD4C46P**]
 保险丝位置图,位置说明,保险丝供电电路图..腾势汽车腾势400时尚版 2017 2217TZ-XSA(电动机)(电动) [LC0DE6CB1H**]
 发动机散热水泵电路图..腾势汽车腾势D9 DM-i1.5T 无级 970 四驱尊荣型 2022 BYD476ZQC(1.5) [LC0DD4C43N**]
 ADS电脑电路图..腾势汽车腾势N7N-Sport版 2023 YS210XYA(电动机)/TZ200XYC(电动机)(电动) [LC0DF4CD3R**]
 方向机摸块电路图..腾势汽车腾势D9 DM-i1.5T 无级 970 四驱尊荣型 2022 BYD476ZQC(1.5) [LC0DD4C43N**]
 我需要安全气囊电路图 谢谢..腾势汽车腾势D9 DM-i1.5T 无级 1050 尊享型 2024 BYD476ZQC(1.5) [LC0DD4C43S**]
 这个车保险在哪里..腾势汽车腾势500荣耀版 2018 TZ2217-XSB(电动机)(电动) [LC0DE6CB4J**]
 档位控制电路图..腾势汽车腾势D9 DM-i1.5T 无级 945 豪华型 2022 BYD476ZQC(1.5) [LC0D74C4XP**]
 悬架维修手册..腾势汽车腾势X PHEV 2020/2021 BYD487ZQB 2.0T [LC0DD4C42L**]

Copyright @ 2009 www.car388.com All rights reserved. 蜀ICP备12014226号-2 增值电信增值业务许可证:川B2-20190647 服务电话:028-87038205 87039205 87020205 川公网安备 51010502010015号 公司地址:成都市龙泉驿区经开区南二路309号 鼎峰动力港 企业办公总部基地 12栋
2026-01-21.-.V28**