[返回列表.]    [免费下载畅易手机版APP ]

用户 tanke **当前提问:倒车灯电路图

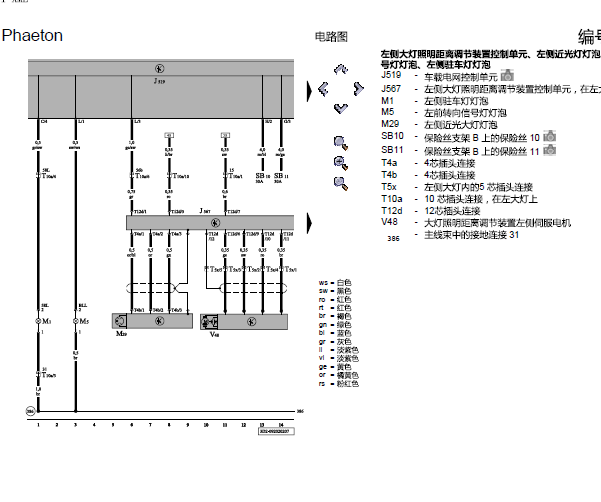
倒车灯电路图

.尊敬的用户,欢迎你使用在线客服,你的问题客服人员已为你处理完毕,请下载附件,如有疑问,欢迎和我们联系!07年大众辉腾灯光电路.

附件:4600429759791.rar


用户 tanke ***其他客服问题:
test:
  后排座椅拆卸图.. 奔驰S40014-无[WDDUG6FBEA** ]
  动力转向线路图.. 长安V52013-无
  水箱风扇电路图.. 大众波罗2002-1.4
  发动机线路图,电脑缺插件不能打开,请给个.. 雷诺科雷傲2009-无
  防盗启动电路图.. 奥迪Q52011-3.2
  空调电路图.. 讴歌MDX2008-无
以下是大众相关车型的客服问题,希望对您有帮助
 变速箱和发动机的维修资料s..大众途观 2010
 正在修新波罗(POL0),请问新波罗(POL0)保养设定..大众新波罗(POL0) 2012
 16年大众朗逸1.6升车身电脑电路图..大众朗逸 2011年 cfn
 柴油途锐机油压力传感器高压和机油压力调节..大众途锐 10年 cas
 大众ID4维修手册..大众ID4 2021 无
 收音机喇叭系统电路图..大众迈腾 07 AXZ [WVWPK13C97**]
 转向柱控制单元电路图和位置..大众宝来 21年 DMB [LFV2A2153M**]
 保养灯归零..大众cc 2018 111 [111**]
 左前升降器开关电路图,从哪里看,看了一会..大众ID.4 X 2022 1 [LSVUA6E44N**]
 桑塔纳4000节气门电路图..大众SVW7182QQD 2009年 CKZ [LSVT913309**]
 新桑塔纳换挡提醒 (仪表上的档位显示)电..大众新桑塔纳 2018 CPD [lsvny4br8j**]
 气缸压缩比,活塞升城的数据..大众波罗 2002 bbc [LSVFE49J55**]

Copyright @ 2009 www.car388.com All rights reserved. 蜀ICP备12014226号-2 增值电信增值业务许可证:川B2-20190647 服务电话:028-87038205 87039205 87020205 川公网安备 51010502010015号 公司地址:成都市龙泉驿区经开区南二路309号 鼎峰动力港 企业办公总部基地 12栋
2025-01-18.-.V25VHTML-2025-V18-11-5---2-